Hermosa casa en venta ubicada en la calle Jose C. Paz 4300

José C. Paz 4385, José C. Paz

Propiedad ubicada a 100 mts de Padre Ustarroz y 20 mts Av. Int. Remigio Lopez

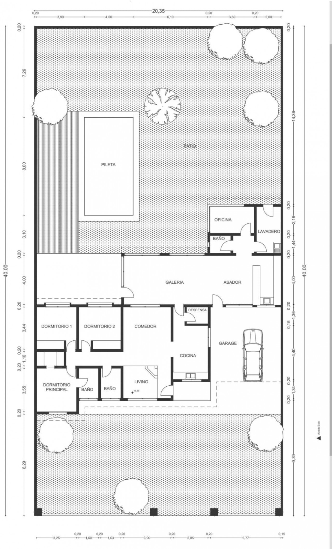
La misma se encuentra en un lote de 20x40 dandonos un total de 800mts de lote. Construidos actualmente en ecxelente estado tiene 200mts2
Al frente podemos encontrar un amplio jardin con espacio para dos autos y cochera cerrada, el ingreso a la propiedad nos lleva a un amplio living con un hogar a gas, con terminacion de piedra el cual nos distribuye hacia la cocina con un deposito o alacena, esta conformada por mesada bajo mesada de marmol con terminaciones de madera, cuenta con 1 baño completo antes del ingreso a las tres habitaciones la primer habitacion con balo en suite y vestidor, la segundacon placard empotrado. Desde la cocina nos conecta hacia un quincho amplio de 12mts de largo por 4 mts de anchos con horno de barro, parrilla y una barra de madera maciza el techo del quincho esta conformado con chapas a dos aguas y una de sus partes de vidrio. tambien podemos encontrar dos depositos de guardado y un baño privado para uso de reuniones o encuentros. La propiedad ademas de contar con servicios de luz y gas cuenta con un sistema de riego tanto en su frente como en la parte de atras donde encontramos un amplio fondo con una pileta de 8x4 de material con benecita con su sistema de filtrado de agua. Gran parte de la propiedad cuenta con terminaciones y aberturas de madera.

Cuenta con Planos y Escritura.

Más información

  • Sup. Cubierta : 200 m²
  • Sup. Semicubierta :
  • Sup. Descubierta :
  • Sup. Terreno Total : 800 m²
  • Antigüedad :
  • Pisos :
  • Habitada :

Características

  • Pileta
  • Quincho
  • Riego Automático
  • Jardín
  • Patio
  • Mascotas permitidas
  • Excelente
  • Estacionamiento Descubierto
  • Pozo negro
  • Servicio Eléctrico
  • Gas de red
  • Estacionamiento techado
  • Acceso a internet
  • Agua de Pozo
  • Pre instalación A/A
  • Portón Automático
  • Pavimento
  • Apto Crédito bancario
  • Parrilla Individual
  • Luminoso
  • Calefacción por estufas
  • Barrio
  • Placards
  • Living
  • Dormitorio en suite
  • Cocina/Comedor Integrados
  • Dormitorio
  • Baño
  • Altillo

Ubicación

¿Alguna duda?

Póngase en contacto con nosotros y lo asesoraremos

@parrellapropiedades copyright 2010

Software Inmobiliario - Sitio Inmuebles